Create Your First Project
Start adding your projects to your portfolio. Click on "Manage Projects" to get started
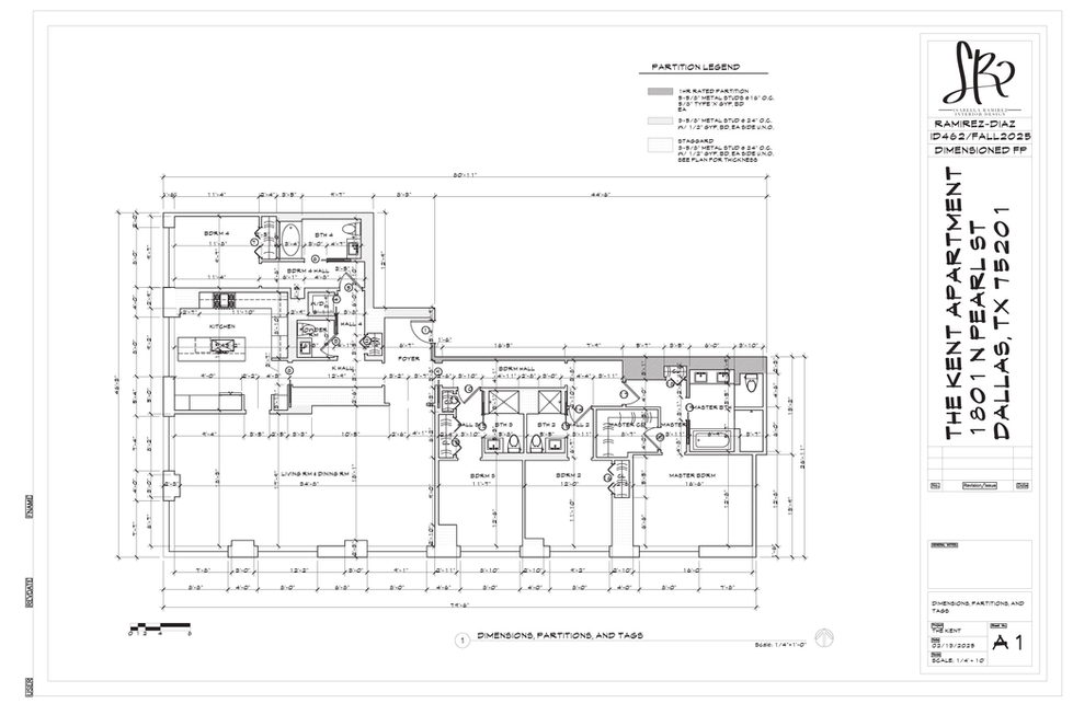
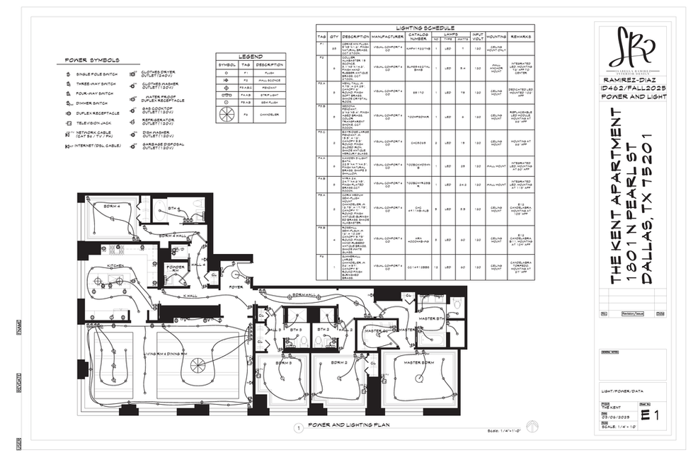
The Kent
Project type
CD Set
Date
May 2025
Location
Dallas, Texas
The kent project involved the development of a comprehensive construction document set for a one-story luxury residence, translating design concepts into precise, buildable drawings. The set includes detailed floor plans, elevations, sections, and specifications that communicate spatial relationships, material selections, and construction requirements.
Emphasis was placed on clarity, accuracy, and coordination to ensure the design intent was effectively conveyed to contractors and consultants. Through this process, I strengthened my technical skills and gained a deeper understanding of industry standards, detailing, and the importance of documentation in bringing a design to life.


















